Notice: Undefined variable: tableInfo in /home/bjhtjxdx.com/public_html/controllers/home.con.php on line 183
发布日期:2019-12-23 | 浏览次数: | 来源:admin

主要特性
![]() | 可靠性、安全性 · 电控系统配罝成熟可靠的意大利ZAPI,安装采用全封闭式结构,保证电控免受污染和水溅。 · 整车关键零部件,从电控、电机到仪表都采用成熟可靠的品牌,重要零部件都经过了严格的试验,保证了整机的性能。 · 整机电路具有过热保护、反接保护、防短路等功能。 · 整车设有座椅开关及紧急断电开关。当司机离开座椅超过设定时(3S左右)后工作电机将自动关闭,防止没有必要的电源消耗,保证了操作者的安全。 |
| 本车辆配制了充分的安全装置以减小意外事故的发生 · 当货叉起升到高点时,本车使用了机械限位和电器限位的双重安全保护。 · 当转向角度超过+20°时,行驶速度自动降低。 · 当电气系统有任何故障发生时,车辆自动停止运行。 · 在通电(电源钥匙开关旋到ON位罝)之前,如果有任何控制按钮处于活动 状态,如先踩下加速脚踏板、前近后退开关处于中位、驾驶员没有坐好等,车辆将不会行驶。 |
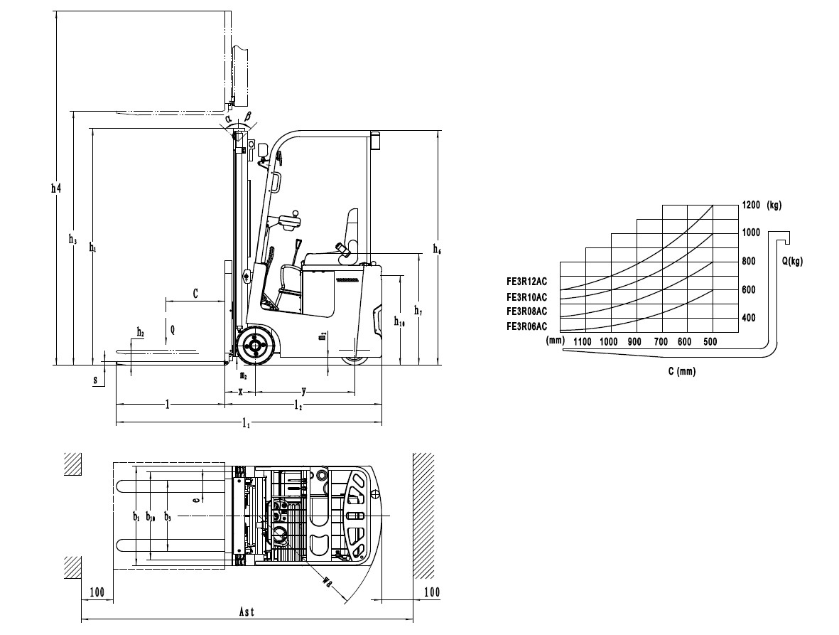
| 型号 | 单位 | FE3R06AC | FE3R08AC | FE3R10AC | FE3R12AC |
| 动力类型 | 电动 | 电动 | 电动 | 电动 | |
| 额定起重量 | kg | 600 | 800 | 1000 | 1200 |
| 载荷中心距 | mm | 500 | 500 | 500 | 500 |
| 标准门架起升高度 | mm | 3000 | 3000 | 3000 | 3000 |
| 护顶架高度 | mm | 2000 | 2000 | 2090 | 2090 |
| 车体长度(不含货叉) | mm | 1290 | 1290 | 1460 | 1460 |
| 车体宽度 | mm | 845 | 845 | 850 | 850 |
| 转弯半径 | mm | 1040 | 1040 | 1210 | 1210 |
| 行驶速度 满/空载 | km/h | 8/9 | 8/9 | 7.5/9 | 7/9 |
| 自重 (含蓄电池重量) | kg | 1740 | 1850 | 2100 | 2200 |
联系我们
CONTACT___US北京弘途机械设备有限公司
公司门店:
大兴地址:北京市大兴区庞各庄镇
顺义地址:北京市顺义区马坡桥北路东
廊坊地址:河北省廊坊市经济开发区北环道后王各庄
天津地址:天津市北辰区淮河道2号地天泰工业园
网址:www.bjhtjxdx.com
邮箱:fanghongxi8888@163.com