Notice: Undefined variable: tableInfo in /home/bjhtjxdx.com/public_html/controllers/home.con.php on line 183
发布日期:2019-12-23 | 浏览次数: | 来源:admin

PT20D是一款将运输操作与拣选操作结合起来的理想车辆,载荷2000kg.
• 双提升设计,能同时搬运两个托盘,
• 免维护交流驱动电机
• 符合人体工学和可靠性设计
• 选配可折叠踏板和防护臂
介绍
PS D20是搬运和堆垛货物的选择,堆垛高度可达2900mm
双提升设计,能同时搬运两个托盘,
PS 20D保证在坡道和不平整的路面时能安全方便的操作。
车辆可选配符合人体工学的可折叠踏板和防护臂,用于更长距离的行驶。
可提升的支撑车腿
特别是通过第二个升降机构,车辆可以操作双层托盘运输,双倍提升了运输能力。同时,可以比标准堆垛车更好地克服坡道、不平整的地面等障碍。
CAN总线技术
CAN总线技术不仅减少了接线的数量,也提高了系统的可靠性。CAN总线技术方便查找并排除故障,和没有CAN总线技术的车辆相比,大大减少了维修时间。数字信号相比传统的模拟信号,可靠性更高且不易受干扰。
电动转向(选配)
电动转向功能使操作更加方便。通过电动转向功能使车辆在狭窄空间内的操作更加容易。
可折叠式的踏板和防护臂(选配)
选配带有侧面防护臂的悬浮可折叠式踏板。
带有侧面防护臂的可折叠式踏板符合人体工学设计,操作更加快捷安全。
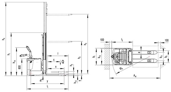
工业车辆参数表(VDI2198) | ||||||||||||||
特性 | 1.2 | 型号 |
| PS 20D | ||||||||||
2900 | 2900FFL | 3200 | 3600 | 3600FFL | 4000 | |||||||||
1.3 | 动力 |
| 电动 | |||||||||||
1.4 | 驾驶方式 |
| 步行 | |||||||||||
1.5 | 额定承载能力 | Q(t) | 21) | |||||||||||
门架提升承载能力 | 1.21) | |||||||||||||
托盘提升承载能力 | 21) | |||||||||||||
1.6 | 载荷中心距 | C(mm) | 600 | |||||||||||
1.8 | 前悬距 | x(mm) | 775 | |||||||||||
1.9 | 轴距 | y(mm) | 1488 | |||||||||||
重量 | 2.1 | 自重(包括蓄电池) | Kg | 1285 | 1305 | 1295 | 1315 | 1335 | 1345 | |||||
2.2 | 满载时桥负荷 驱动轮侧/承重轮侧 | Kg | 1095/2190 | 1105/2200 | 1100/2195 | 1105/2210 | 1110/2225 | 1115/2230 | ||||||
2.3 | 空载时桥负荷驱动轮侧/承重轮侧 | Kg | 950/335 | 960/345 | 955/340 | 970/345 | 985/350 | 995/350 | ||||||
轮子、底盘 | 3.1 | 轮子,橡胶实心轮,聚胺酯轮 |
| 聚氨酯轮 | ||||||||||
3.2 | 轮子尺寸,驱动侧 | ÆxW (mm) | Ф230×75 | |||||||||||
3.3 | 轮子尺寸,承重侧 | ÆxW (mm) | Ф80×70 | |||||||||||
3.4 | 稳定轮尺寸 | ÆxW (mm) | Ф124x60 | |||||||||||
3.5 | 车轮数量(驱动侧/承重侧,X=驱动轮) |
| 1x+2/4 | |||||||||||
3.6 | 轮距,驱动侧 | b10(mm) | 570 | |||||||||||
3.7 | 轮距,承重侧 | b11(mm) | 395/505 | |||||||||||
基本尺寸 | 4.2 | 门架缩回时高度 | h1(mm) | 2027 | 2027 | 2177 | 2377 | 2377 | 2577 | |||||
4.3 | 自由提升高度 | h2(mm) | 150 | 1480 | 150 | 150 | 1830 | 150 | ||||||
4.4 | 提升高度 | h3(mm) | 2815 | 2815 | 3115 | 3515 | 3515 | 3915 | ||||||
4.5 | 作业时门架最大高度 | h4(mm) | 3447 | 3447 | 3747 | 4147 | 4147 | 4547 | ||||||
4.6 | 初始提升 | h5(mm) | 120 | |||||||||||
4.9 | 作业时手柄高度,最大/最小 | h14(mm) | 1370/945 | |||||||||||
4.15 | 门架缩回时货叉高度 | h13(mm) | 88 | |||||||||||
4.19 | 总体长度 | l1(mm) | 2125 | |||||||||||
4.20 | 车体长度 | l2(mm) | 975 | |||||||||||
4.21 | 车体宽度 | b1(mm) | 795 | |||||||||||
4.22 | 货叉尺寸 | s/e/l(mm) | 60/180/1150 | |||||||||||
4.25 | 货叉外宽 | b5(mm) | 575/685 | |||||||||||
4.32 | 最小离地间隙 | m2(mm) | 28 | |||||||||||
4.33 | 通道宽度1000X1200跨货叉放 | Ast(mm) | 2615 | |||||||||||
4.34 | 通道宽度 800X1200 沿货叉放 | Ast(mm) | 2558 | |||||||||||
4.35 | 转弯半径 | Wa(mm) | 1774 | |||||||||||
性能 | 5.1 | 行驶速度满载/空载 | km/h | 5.2/5.5 | ||||||||||
5.2 | 搬运起升速度满载/空载 | m/s | 0.05/0.09 | |||||||||||
堆高起升速度满载/空载 | 0.14/0.18 | 0.15/0.19 | ||||||||||||
5.3 | 搬运下降速度满载/空载 | m/s | 0.060/0.066 | |||||||||||
堆高下降速度满载/空载 | 0.120/0.081 | |||||||||||||
5.8 | 最大爬坡能力满载/空载 | % | 6/12 | |||||||||||
5.10 | 行车制动 |
| 电磁制动 | |||||||||||
电机 | 6.1 | 驱动电机功率 | kw | 1.3 | ||||||||||
6.2 | 提升电机功率 | kw | 2.2 | 3.0 | ||||||||||
6.3 | 蓄电池, DIN 43531/35/36 A, B, C, no |
| B,2PzS | |||||||||||
6.4 | 蓄电池电压/容量 | V/Ah | 24/210 | |||||||||||
6.5 | 蓄电池重量 +/-5% | kg | 217 | |||||||||||
6.6 | 按VDI循环能耗 | kWh/h |
| |||||||||||
其它 | 8.1 | 驱动控制方式 |
| 场效应管控制 | ||||||||||
8.4 | 驾驶员耳边噪音水平 根据EN12053 | dB(A) | 69 | |||||||||||
1 )当双层操作时:门架提升载荷为1t,托盘提升载荷为1t。
联系我们
CONTACT___US北京弘途机械设备有限公司
公司门店:
大兴地址:北京市大兴区庞各庄镇
顺义地址:北京市顺义区马坡桥北路东
廊坊地址:河北省廊坊市经济开发区北环道后王各庄
天津地址:天津市北辰区淮河道2号地天泰工业园
网址:www.bjhtjxdx.com
邮箱:fanghongxi8888@163.com