Notice: Undefined variable: tableInfo in /home/bjhtjxdx.com/public_html/controllers/home.con.php on line 183
发布日期:2016-10-22 | 浏览次数: | 来源:admin

· CAN-BUS技术
CAN-BUS技术不仅减少了接线的数量,也提高了系统的可靠性。
CAN-BUS技术方便查找并排除故障,和没有CAN-BUS技术的车辆相比,大大减少了维修时间。
与模拟信号相比,使用数字信号的零件寿命更长。
· 货叉可倾斜 | |
| |
| |
| |
| |
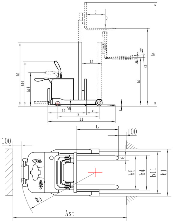
门架参数 PS15RM | ||||
参数 | 门架缩回时高度 | 自由提升高度 | 提升高度 | 作业时门架最大高度 |
PS 15RM | ||||
两门架 | 2096 | - | 3000 | 3885 |
三门架 | 1796 | 1200 | 3600 | 4485 |
特性 | 1.2 | 型号 |
| PS15RM16 | PS15RM18 | PS15RM30 | PS15RM36 | PS15RM45 |
1.3 | 动力 |
| 电动 | |||||
1.4 | 驾驶方式 |
| 步行式 | |||||
1.5 | 额定承载能力 | Q(kg) | 1500 | |||||
1.6 | 载荷中心距 | C(mm) | 600 | |||||
1.8 | 前悬距 | X(mm) | 465 | |||||
1.9 | 轴距 | Y(mm) | 1500 | |||||
重量 | 2.1 | 重量 | kg | 1800 | 1850 | 1950 | 2150 | 2200 |
2.2 | 满载时桥负荷 | kg | 1300/ | 1330/ | 1370/ | 1470/ | 1500/ | |
2.3 | 空载时桥负荷 | kg | 1280/ | 1300/ | 1350/ | 1450/ | 1480/ | |
车子车体 | 3.1 | 轮子 |
| 聚氨酯轮 | ||||
3.2 | 轮子尺寸 | mm | Φ250x82 | |||||
3.3 | 轮子尺寸 | mm | Φ230x100 | |||||
3.4 | 转向轮尺寸 | mm | Φ124x60 | |||||
3.5 | 轮子数量 |
| 1x+2/2 | |||||
3.6 | 轮距(前面) | b10(mm) | 680 | |||||
3.7 | 轮距(后面) | b11(mm) | 988 | |||||
基本尺寸 | 4.1 | 货叉倾角前/后 | α/β(°) | 2/4 | ||||
4.2 | 门架缩回时高度 | h1(mm) | 2196 | 2396 | 2096 | 1796 | 2096 | |
4.3 | 自由提升高度 | h2(mm) | 1600 | 1800 | - | 1200 | 1500 | |
4.4 | 提升高度 | h3(mm) | 1600 | 1800 | 3000 | 3600 | 4500 | |
4.5 | 作业时门架最大高度 | h4(mm) | 2485 | 2685 | 3885 | 4485 | 5385 | |
4.9 | 作业时手柄高度 | h14(mm) | 1034/1415 | |||||
4.15 | 门架缩回时货叉高度 | h13(mm) | 50 | |||||
4.19 | 总体长度 | l1(mm) | 2240 | |||||
4.20 | 车体长度 | l2(mm) | 1870 | |||||
4.21 | 车体宽度 | b1(mm) | 1090 | |||||
4.22 | 货叉尺寸 | s/e/l | 35/100/950(1150) | |||||
4.25 | 货叉外宽 | b5(mm) | 220/760 | |||||
4.26 | 支撑臂和载重面间距离 | b4(mm) | 790 | |||||
4.28 | 前移距离 | l4(mm) | 610 | |||||
4.32 | 最小离地间隙 | m2(mm) | 39 | |||||
4.33 | 通道宽度1000X1200 | Ast(mm) | 2730 | |||||
4.34 | 通道宽度,800X1200 | Ast(mm) | 2770 | |||||
4.35 | 转弯半径 | Wa(mm) | 1726 | |||||
性能 | 5.1 | 行驶速度 | km / h | 5.0/5.5 | ||||
5.2 | 起升速度 | m/s | 0.11/0.165 | |||||
5.3 | 下降速度 | m/s | 0.1/0.095 | |||||
5.8 | 最大爬坡能力 | % | 5/8 | |||||
5.9 | 行车制动 |
| 再生制动 | |||||
5.10 | 停车制动 |
| 电磁制动 | |||||
电机 | 6.1 | 驱动电机功率 | kw | 1.6 | ||||
6.2 | 提升电机功率 | kw | 3.0 | |||||
6.3 | 蓄电池DIN |
| 3PzS | 4PzS | ||||
6.4 | 蓄电池电压,容量 | V/Ah | 24 / 270 | 24 / 400 | ||||
6.6 | 能量消耗, | kWh/h | 2.47 | |||||
其它 | 8.1 | 驱动控制方式 |
| 场效应管控制 | ||||
8.4 | 驾驶员耳边噪音水平根据EN12053 | dB(A) | 67 | |||||
联系我们
CONTACT___US北京弘途机械设备有限公司
公司门店:
大兴地址:北京市大兴区庞各庄镇
顺义地址:北京市顺义区马坡桥北路东
廊坊地址:河北省廊坊市经济开发区北环道后王各庄
天津地址:天津市北辰区淮河道2号地天泰工业园
网址:www.bjhtjxdx.com
邮箱:fanghongxi8888@163.com